East 61st Street Condo Finally Reveals Itself, $82.5M Sellout Projected
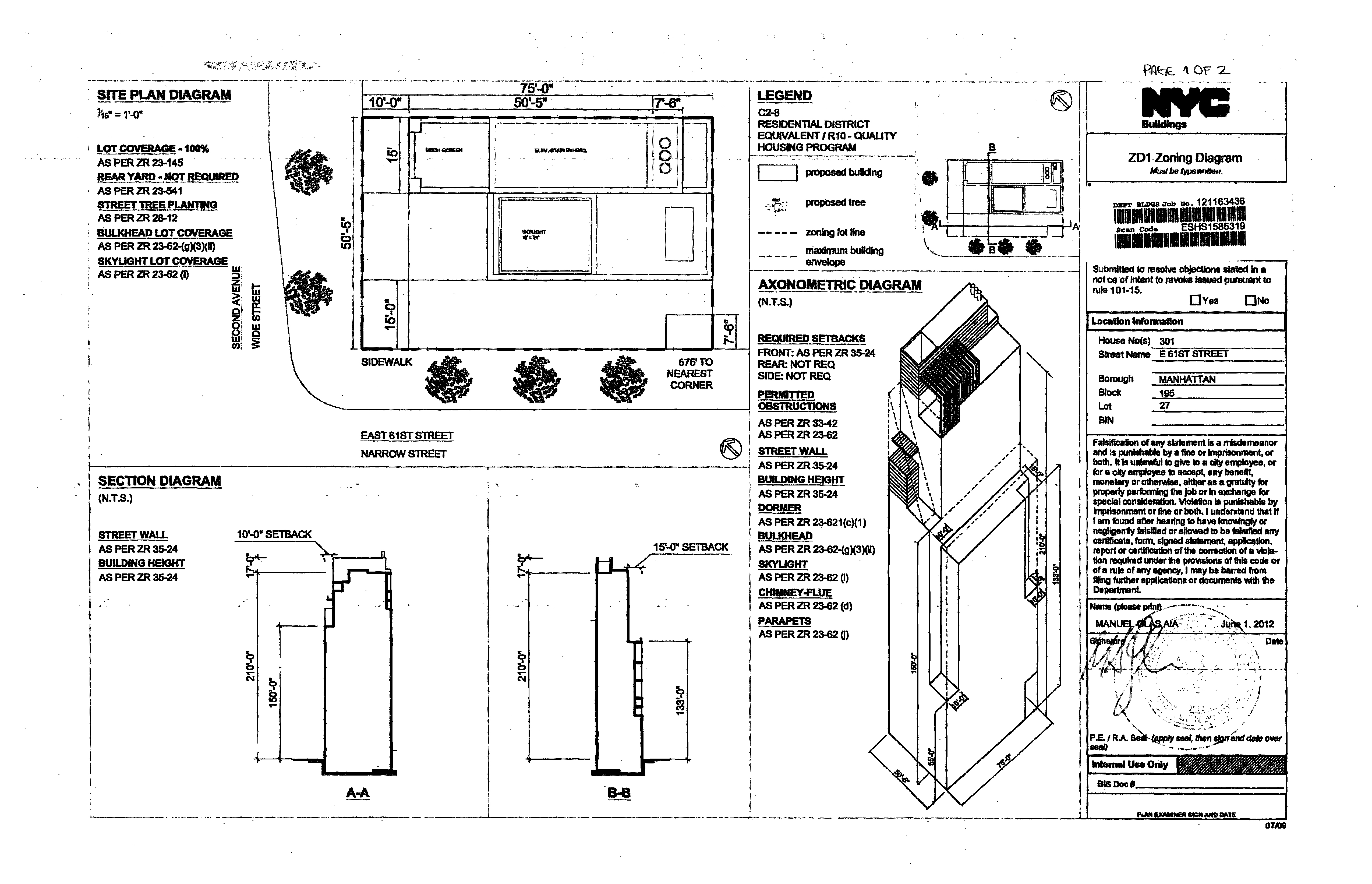
At the northeast corner of East 61st Street and Second Avenue, a long shrouded condominium project is finally showing us some skin. The 19-story building addressed at 301 East 61st Street exhibits a creamy stone exterior, with inset balconies and vertical fins projecting from a floor-to-ceiling glass curtain wall. The building is being developed by Orlando-based Inverlad Development who purchased the 3,800-square-foot lot for $15.4 million in 2012.
Permits filed in 2012 call for a 45,000-square-foot, 210-foot-tall building holding 30 residential units and ground-floor retail. Manuel Glas Architects is listed as the applicant of record and has worked on several Manhattan residential towers including Gramercy 145, 84 White Street and an upcoming 30-story condominium also for Inverlad at 1059 Third Avenue. Construction of the building began in the summer of 2014 and acccording to the offering plan submitted to the state’s Attorney General office, Inverlad anticipates a total sellout of $82,552,713.
![]()
(L to R) Previous designs by Kossar and Garry Architects, Garrett Gourlay Architect, & Construction photo
The building will be composed of numerous duplexes, and most floors have a maximum of two units. The 16th and 17th floors will host one apartment each, while the 18th and 19th will be a single duplex penthouse. The Real Deal reported in 2014 that Corcoran’s Tamir Shemesh will handle sales.
View future listings for 301 East 61st Street at CityRealty.
RELATED:
- Renderings Revealed for Upper East Side’s First Supertall at Former Subway Inn Site
- HOK Architects Files Permits for 21-Story UES Condo Tower, Will Yield New Subway Entrance
- Units Come Online for 180 East 88th Street, Tallest Building Between 72nd Street and Albany




